Recessed Lighting Plan Kitchen . • it’s ideal for counter tops and island bars. knowing how to lay out recessed lighting is the first step in upgrading the lights in your home. • highlight counter areas, stove tops and other details for visual interest. With this in mind, there are two ways. Think about what purpose your new. recessed lighting, also known as downlights or can lights, are light fixtures installed within the ceiling, creating a sleek and modern look. kitchen recessed lighting offers a clean look and can be used throughout the room space. Because of their design, they provide a clean and organized appearance, making rooms look larger and more open. 10k+ visitors in the past month while there are basic kitchen lighting plans, the exact placement of lights will depend on your unique space. • use it for general lighting in open floor plan areas.
from www.pinterest.fr
Think about what purpose your new. kitchen recessed lighting offers a clean look and can be used throughout the room space. Because of their design, they provide a clean and organized appearance, making rooms look larger and more open. • highlight counter areas, stove tops and other details for visual interest. recessed lighting, also known as downlights or can lights, are light fixtures installed within the ceiling, creating a sleek and modern look. knowing how to lay out recessed lighting is the first step in upgrading the lights in your home. • use it for general lighting in open floor plan areas. while there are basic kitchen lighting plans, the exact placement of lights will depend on your unique space. • it’s ideal for counter tops and island bars. With this in mind, there are two ways.
Recessed lighting can make your kitchen look better, brighter and more
Recessed Lighting Plan Kitchen recessed lighting, also known as downlights or can lights, are light fixtures installed within the ceiling, creating a sleek and modern look. Think about what purpose your new. while there are basic kitchen lighting plans, the exact placement of lights will depend on your unique space. knowing how to lay out recessed lighting is the first step in upgrading the lights in your home. Because of their design, they provide a clean and organized appearance, making rooms look larger and more open. With this in mind, there are two ways. kitchen recessed lighting offers a clean look and can be used throughout the room space. recessed lighting, also known as downlights or can lights, are light fixtures installed within the ceiling, creating a sleek and modern look. • highlight counter areas, stove tops and other details for visual interest. • it’s ideal for counter tops and island bars. 10k+ visitors in the past month • use it for general lighting in open floor plan areas.
From www.lightingtutor.com
How to Layout Recessed Lighting in 5 Simple Steps Lighting Tutor Recessed Lighting Plan Kitchen 10k+ visitors in the past month Think about what purpose your new. while there are basic kitchen lighting plans, the exact placement of lights will depend on your unique space. • it’s ideal for counter tops and island bars. • use it for general lighting in open floor plan areas. kitchen recessed lighting offers a clean look and. Recessed Lighting Plan Kitchen.
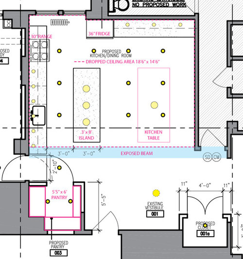
From www.houzz.com
kitchen recessed lighting layout advice needed Recessed Lighting Plan Kitchen kitchen recessed lighting offers a clean look and can be used throughout the room space. • it’s ideal for counter tops and island bars. recessed lighting, also known as downlights or can lights, are light fixtures installed within the ceiling, creating a sleek and modern look. Because of their design, they provide a clean and organized appearance, making. Recessed Lighting Plan Kitchen.
From cermyseb.blob.core.windows.net
Porch Recessed Lighting Placement at Laura Smith blog Recessed Lighting Plan Kitchen Because of their design, they provide a clean and organized appearance, making rooms look larger and more open. Think about what purpose your new. kitchen recessed lighting offers a clean look and can be used throughout the room space. 10k+ visitors in the past month With this in mind, there are two ways. knowing how to lay out. Recessed Lighting Plan Kitchen.
From www.houzz.com
Recessed lighting layout for my kitchen Recessed Lighting Plan Kitchen recessed lighting, also known as downlights or can lights, are light fixtures installed within the ceiling, creating a sleek and modern look. • highlight counter areas, stove tops and other details for visual interest. Think about what purpose your new. kitchen recessed lighting offers a clean look and can be used throughout the room space. 10k+ visitors in. Recessed Lighting Plan Kitchen.
From kaptenmods.com
Kitchen Recessed Lighting Layout Kitchen Info Recessed Lighting Plan Kitchen kitchen recessed lighting offers a clean look and can be used throughout the room space. • it’s ideal for counter tops and island bars. recessed lighting, also known as downlights or can lights, are light fixtures installed within the ceiling, creating a sleek and modern look. • use it for general lighting in open floor plan areas. 10k+. Recessed Lighting Plan Kitchen.
From ipipeline.net
Kitchen Recessed Lighting Spacing From Wall Things In The Kitchen Recessed Lighting Plan Kitchen Think about what purpose your new. Because of their design, they provide a clean and organized appearance, making rooms look larger and more open. • it’s ideal for counter tops and island bars. kitchen recessed lighting offers a clean look and can be used throughout the room space. recessed lighting, also known as downlights or can lights, are. Recessed Lighting Plan Kitchen.
From interiorhousecolors.blogspot.com
55+ Recessed Lighting Kitchen Layout Design Recessed Lighting Plan Kitchen while there are basic kitchen lighting plans, the exact placement of lights will depend on your unique space. With this in mind, there are two ways. Because of their design, they provide a clean and organized appearance, making rooms look larger and more open. 10k+ visitors in the past month • it’s ideal for counter tops and island bars.. Recessed Lighting Plan Kitchen.
From www.houzz.com
Help! Kitchen Lighting Placement/Plan/Recessed Lighting Advice Recessed Lighting Plan Kitchen • use it for general lighting in open floor plan areas. With this in mind, there are two ways. Because of their design, they provide a clean and organized appearance, making rooms look larger and more open. while there are basic kitchen lighting plans, the exact placement of lights will depend on your unique space. knowing how to. Recessed Lighting Plan Kitchen.
From www.pinterest.se
recessed lighting layout diagram Recessed lighting layout, Kitchen Recessed Lighting Plan Kitchen kitchen recessed lighting offers a clean look and can be used throughout the room space. Think about what purpose your new. while there are basic kitchen lighting plans, the exact placement of lights will depend on your unique space. 10k+ visitors in the past month • use it for general lighting in open floor plan areas. knowing. Recessed Lighting Plan Kitchen.
From www.pinterest.com
Kitchen Recessed Lighting Placement Kitchen Lighting Kitchen Recessed Lighting Plan Kitchen kitchen recessed lighting offers a clean look and can be used throughout the room space. 10k+ visitors in the past month With this in mind, there are two ways. knowing how to lay out recessed lighting is the first step in upgrading the lights in your home. Because of their design, they provide a clean and organized appearance,. Recessed Lighting Plan Kitchen.
From www.pinterest.com
Kitchen Recessed Lighting Placement Clark+Aldine MI Kitchen Recessed Lighting Plan Kitchen Because of their design, they provide a clean and organized appearance, making rooms look larger and more open. recessed lighting, also known as downlights or can lights, are light fixtures installed within the ceiling, creating a sleek and modern look. Think about what purpose your new. With this in mind, there are two ways. 10k+ visitors in the past. Recessed Lighting Plan Kitchen.
From www.houzz.com
recessed lighting kitchen plan 411! Recessed Lighting Plan Kitchen 10k+ visitors in the past month while there are basic kitchen lighting plans, the exact placement of lights will depend on your unique space. recessed lighting, also known as downlights or can lights, are light fixtures installed within the ceiling, creating a sleek and modern look. • use it for general lighting in open floor plan areas. •. Recessed Lighting Plan Kitchen.
From languageoflight.blog
Developing a Kitchen Lighting Plan the language of light Recessed Lighting Plan Kitchen recessed lighting, also known as downlights or can lights, are light fixtures installed within the ceiling, creating a sleek and modern look. while there are basic kitchen lighting plans, the exact placement of lights will depend on your unique space. Because of their design, they provide a clean and organized appearance, making rooms look larger and more open.. Recessed Lighting Plan Kitchen.
From www.pinterest.com
Kitchen lighting plan Kitchen recessed lighting, Recessed lighting Recessed Lighting Plan Kitchen kitchen recessed lighting offers a clean look and can be used throughout the room space. • it’s ideal for counter tops and island bars. With this in mind, there are two ways. • highlight counter areas, stove tops and other details for visual interest. Because of their design, they provide a clean and organized appearance, making rooms look larger. Recessed Lighting Plan Kitchen.
From ipipeline.net
Recessed Kitchen Lighting Guide Things In The Kitchen Recessed Lighting Plan Kitchen • it’s ideal for counter tops and island bars. With this in mind, there are two ways. Think about what purpose your new. recessed lighting, also known as downlights or can lights, are light fixtures installed within the ceiling, creating a sleek and modern look. kitchen recessed lighting offers a clean look and can be used throughout the. Recessed Lighting Plan Kitchen.
From www.pinterest.fr
Recessed lighting can make your kitchen look better, brighter and more Recessed Lighting Plan Kitchen • use it for general lighting in open floor plan areas. With this in mind, there are two ways. • highlight counter areas, stove tops and other details for visual interest. • it’s ideal for counter tops and island bars. knowing how to lay out recessed lighting is the first step in upgrading the lights in your home. . Recessed Lighting Plan Kitchen.
From degnandesignbuildremodel.com
Why You Should Consider Using Recessed Lighting In a Kitchen Remodel Recessed Lighting Plan Kitchen 10k+ visitors in the past month Think about what purpose your new. • highlight counter areas, stove tops and other details for visual interest. Because of their design, they provide a clean and organized appearance, making rooms look larger and more open. while there are basic kitchen lighting plans, the exact placement of lights will depend on your unique. Recessed Lighting Plan Kitchen.
From www.pinterest.pt
How Many Recessed Lights? Recessed Lighting Installation Recessed Recessed Lighting Plan Kitchen • highlight counter areas, stove tops and other details for visual interest. • use it for general lighting in open floor plan areas. Think about what purpose your new. recessed lighting, also known as downlights or can lights, are light fixtures installed within the ceiling, creating a sleek and modern look. knowing how to lay out recessed lighting. Recessed Lighting Plan Kitchen.